
四川麥克威通風設備有限公司
咨詢熱線:028-82630900
手機:13881905158
傳真:028-82630433
郵箱:mcwell@qq.com
辦公:成都市青羊區光華東三路489號西環廣場2棟
廠址:成都市金堂淮口工業區節能大道(國染大道)
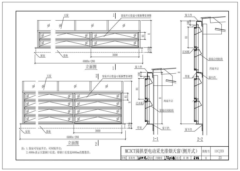
側開式圓拱形電動采光排煙天窗的構造圖解淺析
側開式圓拱形電動采光排煙天窗由窗體、弧形骨架、弧頂板材、電動推窗器、電動控制箱、泛水板等結構組成。其窗扇通過電控箱控制推窗器的開啟,從而實現側面開啟,開啟角度一般在70°以下,可用于日常通風換氣、排出濁氣。
此外,天窗又可分為C3CT和MC3CT兩種窗型,其中C3CT圓拱型天窗為單層側開天窗,窗體高度介于1100mm-1714mm之間;MC3CT圓拱型天窗為多層側開天窗,通風排煙量更大,適用于通風要求較高的建筑,其窗體高度較于C3CT圓拱型電動采光排煙天窗更高,介于1830mm-4350mm,窗扇具有雙層或四層結構。
關于側開式圓拱形電動采光排煙天窗的規格參數、結構設計,可參考11cj33通風采光天窗圖集。
熱點產品 / Hot Products
“推薦閱讀”
- 2024-01-09圓拱形通風排煙采光天窗的通風排煙表現如何
- 2024-01-12圓拱形通風排煙采光天窗的設計應該考量什么
- 2024-01-30設計圓拱形電動采光排煙天窗的關鍵解析